Immobili in vendita nel Ponente Ligure
+ 39 0184 26 44 26 santampelio@santampelio.com

Appartamento a Bordighera

Cod. 3925
Bordighera
430.000 €
2 camere 2 bagni 80 mq

Descrizione

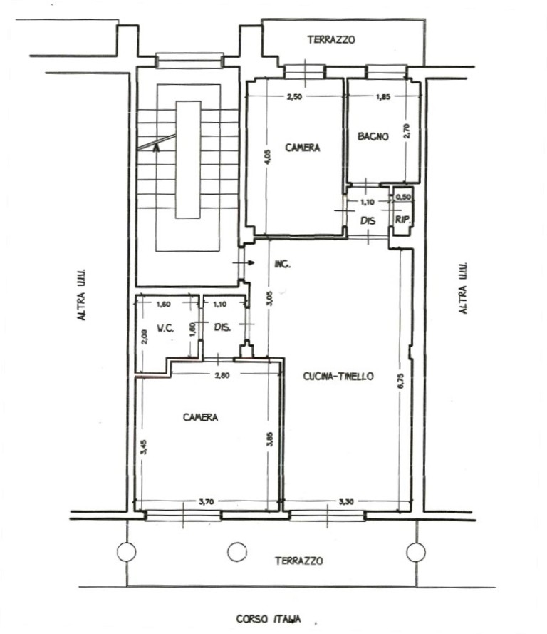
TRILOCALE NUOVO CENTRALISSIMO - In una delle più belle vie di Bordighera, viene proposto in vendita appartamento ottimamente ristrutturato ed ARREDATO, ubicato al secondo piano di palazzina con ascensore. L'alloggio ha una comoda superficie abitativa e si compone di ingresso nella zona giorno con cucina a vista, due camere matrimoniali ognuna con servizio completo, di cui uno con doccia, e uno con vasca; doppia esposizione con balcone ad uso della camera ad est e ampio balcone vivibile a ovest ad uso della zona giorno. La palazzina si presenta con le facciate appena rifatte. L'androne scala, portone e vano scala in corso di rinnovamento. Si è provveduto, contemporaneamente, al rifacimento e messa a norme di tutte le utenze condominiali. R 3925

Informazioni principali

Tipologia immobile
Appartamento
Tipologia edificio
Condominiale
Superficie
80
Locali/Vani
3
Cemere da letto
2
Bagni
2
Piano
2
Ascensore
Posto Auto/Garage
No

Altre caratteristiche

Distanza dal mare
150
Distanza dal centro
0
Distanza stazione ferroviaria
100
pavimenti zona giorno
ceramica
pavimenti zona notte
ceramica
Serramenti interni
porte legno bianco
Serramenti esterni
anodizzato bianco
doppi vetri
si
portoncino ingresso
blindato
aria condizionata

Spese

Prezzo dell’immobile
430.000 €
Spese condominiali
55 €

Costruzione

Stato immobile
Ottimo
Orientamento
EO
Riscaldamento
autonomo ( 0 )
Classe energetica
G

Distanza da

Mare
200 m
Stazione ferroviaria
150 m
Scrivi per l’annuncio
oppure
Contatta l’Agenzia